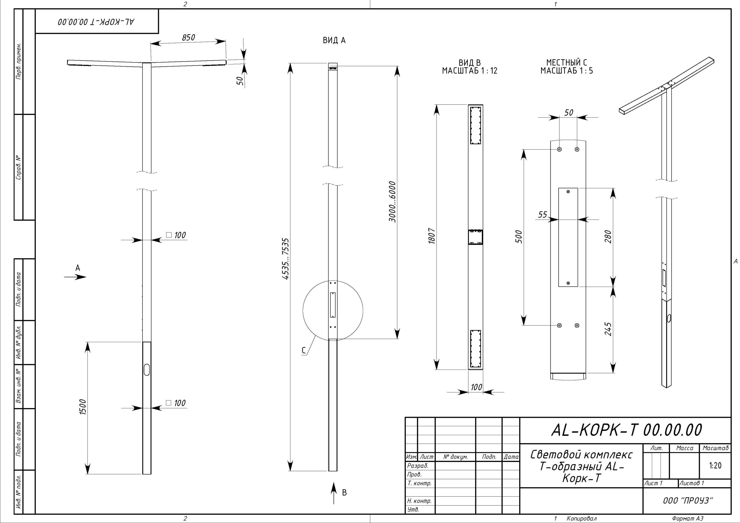
Опорная металлоконструкция для светильников серии AL-Корк изготавливается из прочного алюминиевого сплава с полимерным покрытием. Алюминий обеспечивает легкость, исключительную коррозионную стойкость и практичность, не требуя дополнительного цинкования.
Опорная металлоконструкция для светильников серии AL-Корк изготавливается из прочного алюминиевого сплава с полимерным покрытием. Алюминий обеспечивает легкость, исключительную коррозионную стойкость и практичность, не требуя дополнительного цинкования.
Сверхпрочность конструкции гарантирована благодаря применению технологии лазерной сварки. Высота опор варьируется от 3 до 6 метров с возможностью одностороннего или двухстороннего крепления светильников (типы Г, Т, Z). Конструкция оснащена удобным монтажно-ревизионным люком, а световая часть является отсоединяемой для простоты логистики и имеет степень защиты IP67.
Важными преимуществами являются централизованный доступ: лючок к драйверу и автомату, а также монтажные отверстия выведены на одну сторону опоры, и продуманная компоновка: элементы внутри светильника расположены для максимального удобства монтажа и обслуживания. Это сокращает время установки, упрощает подключение и сервис. В светильниках используются надежные блоки питания MeanWell или Philips. Гарантийный срок составляет 60 месяцев.
По желанию заказчика корпус может быть окрашен в любой цвет по палитре RAL.
| Характеристики AL-Корк-Т3-2х30: | |
|---|---|
| Светотехнические | |
| Световой поток светильника, лм | 9000 |
| Пульсация светового потока, % | менее 1 |
| Кривая силы света по ГОСТ Р 54350-2011 | Ш (Широкая) |
| Индекс цветопередачи | не менее 80 |
| Цветовая температура, К | 2 700 К – 6500 К |
| Электротехнические | |
| Потребляемая мощность, Вт | 90 |
| Напряжение питания переменного тока, В | 100...305 |
| Частота питающей сети, Гц | 47...63 |
| Класс электробезопасности по ГОСТ Р МЭК 536-94 | I |
| Коэффициент мощности, cos φ | не менее 0,97 |
| Эксплуатационные | |
| Степень IP по ГОСТ 14254-96 | 67 |
| Климатическое исполнение по ГОСТ 15150-69 | УХЛ1 |
| Температура эксплуатации | от минус 60°С до плюс 40 °С |
| Габаритные размеры без упаковки (ДхШхВ), мм | см.чертеж |
| Масса нетто, кг | 14,8 |
| Дополнительные | |
| Гарантийный срок эксплуатации, мес | 60 |
| Возможность изготовления с аварийным блоком питания | Имеется |
| Возможность изготовления под питающее напряжение 12-36 В | Имеется |
Дополнительная вкладка для размещения информации о товарах, доставке или любого другого важного контента. Поможет вам ответить на интересующие покупателя вопросы и развеять его сомнения в покупке. Используйте её по своему усмотрению.
Вы можете убрать её или вернуть обратно, изменив одну галочку в настройках компонента. Очень удобно.
