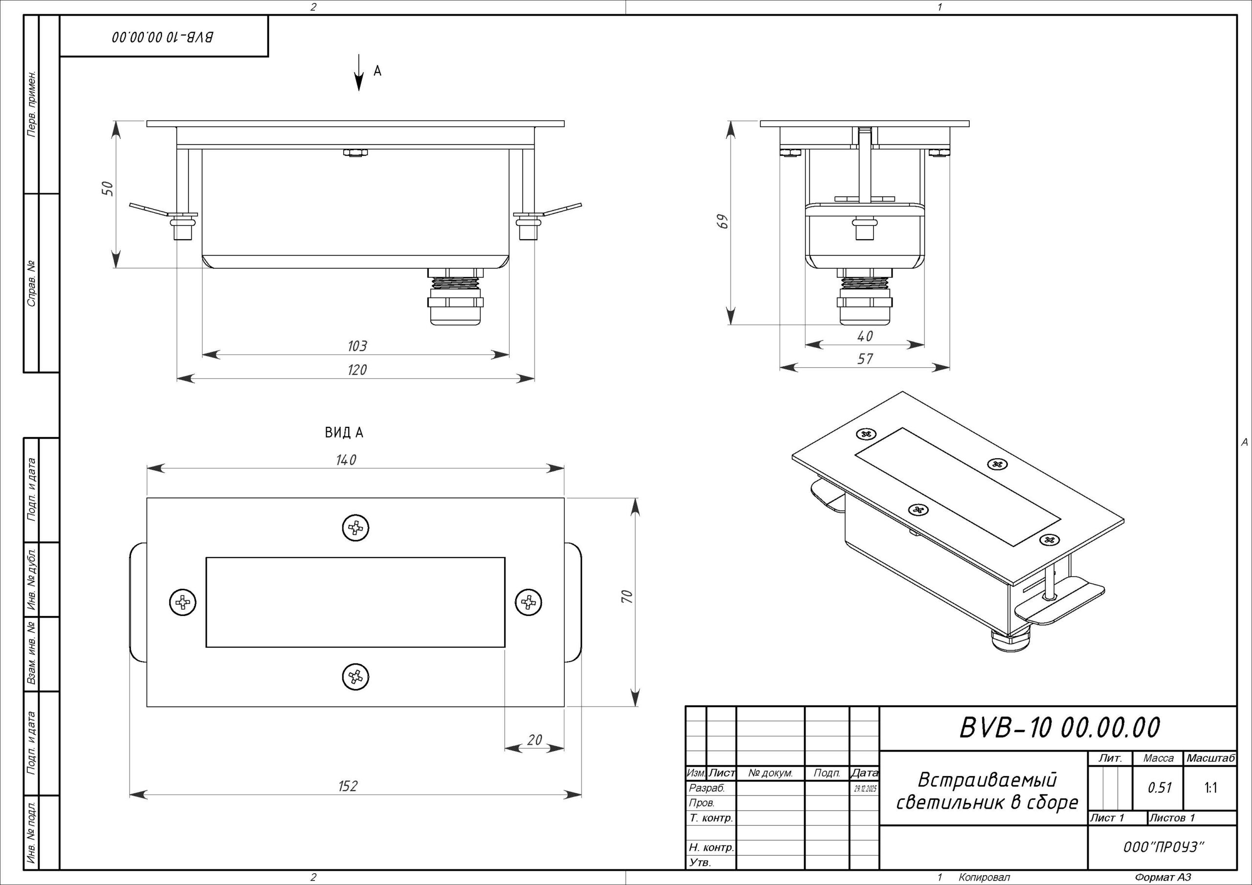
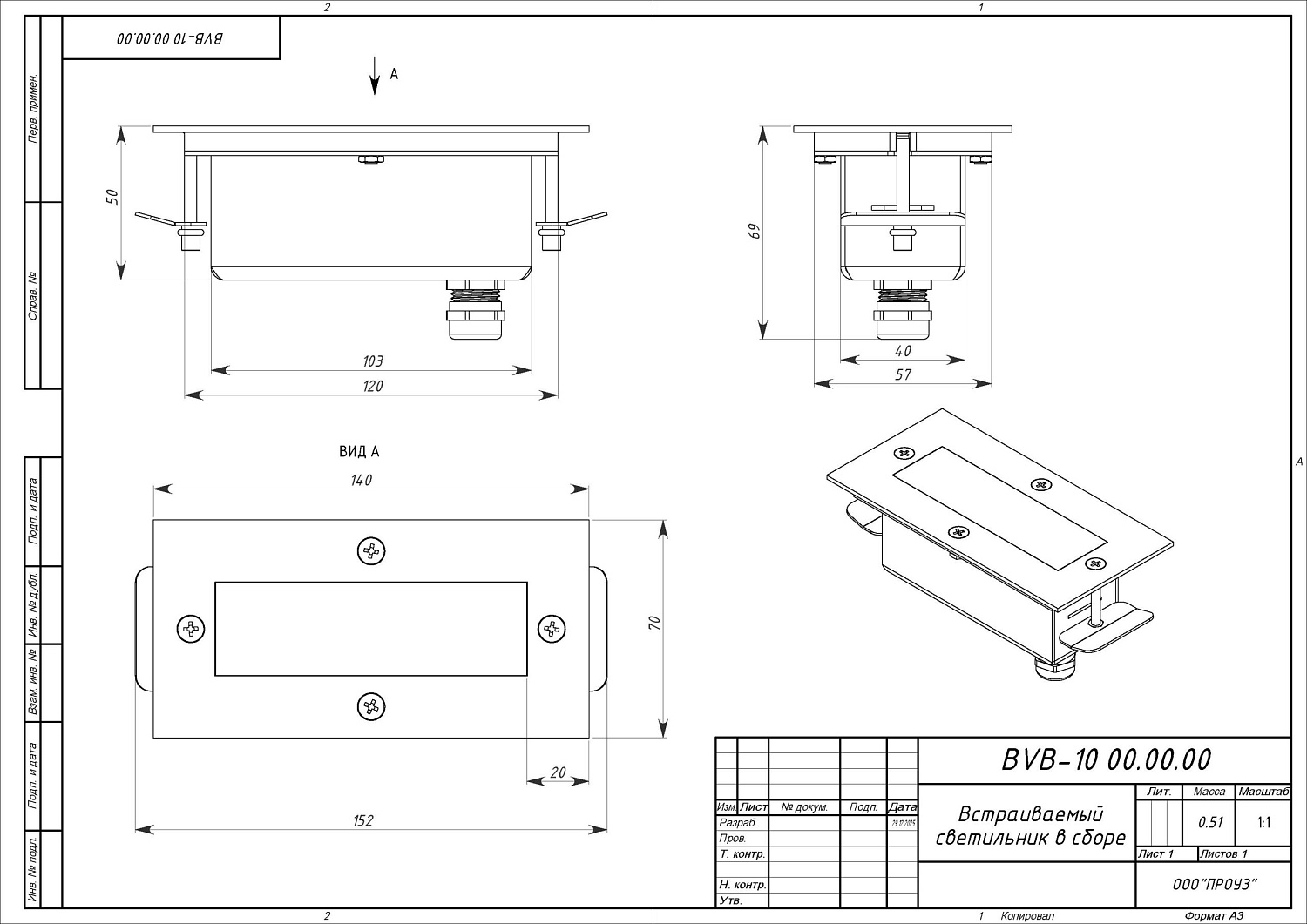
Представляем вам надежный и функциональный инструмент для комплексных решений в области ландшафтного и архитектурного света – грунтовый светильник BVB-10.
Характеристики
Световой поток светильника, лм
—
660
Потребляемая мощность, Вт
—
24
Степень IP по ГОСТ 14254-96
—
67
Цена действительна только для интернет-магазина и может отличаться от цен в розничных магазинах
#PROP_TITLE#
—
#PROP_VALUE#
Представляем вам надежный и функциональный инструмент для комплексных решений в области ландшафтного и архитектурного света – грунтовый светильник BVB-10.
Области применения:
- Заливающее и акцентное освещение фасадов, памятников, элементов инфраструктуры.
- Маркировочное освещение дорожек, парковых зон, частных территорий.
- Подсветка ландшафтных объектов и малых архитектурных форм.
| Характеристики Архитектурные светильники серии BVB-10: | |
|---|---|
| Светотехнические | |
| Световой поток светильника, лм | 660 |
| Кривая силы света по ГОСТ Р 54350-2011 | D (косинусная) |
| Цветовая температура, К | 3 000 |
| Электротехнические | |
| Потребляемая мощность, Вт | 24 |
| Класс электробезопасности по ГОСТ Р МЭК 536-94 | III |
| Коэффициент мощности, cos φ | не менее 0,97 |
| Эксплуатационные | |
| Степень IP по ГОСТ 14254-96 | 67 |
| Климатическое исполнение по ГОСТ 15150-69 | У1 |
| Температура эксплуатации | от минус 60°С до плюс 40 °С |
| Габаритные размеры без упаковки (ДхШхВ), мм | см.чертеж |
| Масса нетто, кг | 0,7 |
Дополнительная вкладка для размещения информации о товарах, доставке или любого другого важного контента. Поможет вам ответить на интересующие покупателя вопросы и развеять его сомнения в покупке. Используйте её по своему усмотрению.
Вы можете убрать её или вернуть обратно, изменив одну галочку в настройках компонента. Очень удобно.
Фотогалерея
1/1
—
